Mason Hall is known by Spartans for its open common areas and proximity to Grand River Avenue, perfect for a day out with friends.
Fun fact: Mason Hall is named after Stevens T. Mason, the first governor of Michigan.
For a 360 tour of a room in North Neighborhood visit: liveon.msu.edu/360Tours

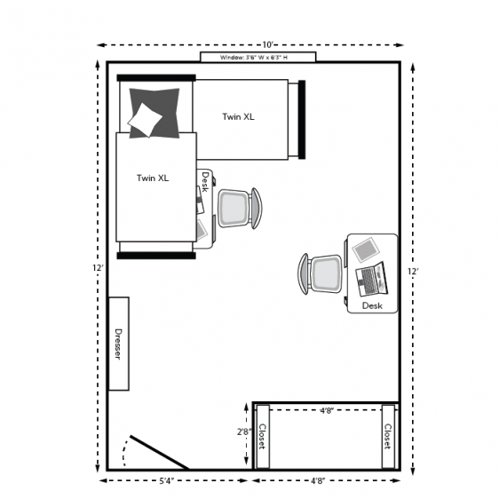
Floor Plans
- Double Room

Floor plan dimensions are approximate — room size and furniture dimensions can vary from room to room.
Building style: Collegiate Gothic
Neighborhood: North
Year built: 1938
Number of Floors: 3
Service Center: 517-355-2129
Engagement Center: MSU Union
Address: 281 Physics Road
East Lansing, MI 48825
Building Features
- Community-style bathrooms
- Single- and double-style furnished rooms
- Fully furnished
- Alcohol-free floors
- In-room Wi-Fi
- Co-ed floors
- Barrier-free housing
- Bike storage
- Music practice rooms
- Game room
- TV lounge
Mason Hall Location
Want to see more?
Explore other halls in North Neighborhood.
Abbot Hall | Campbell Hall | Gilchrist Hall | Landon Hall | Mason Hall | Mayo Hall | Phillips Hall | Snyder Hall | Williams Hall | Yakeley Hall
Mason Service Center
517-355-2129
Community Director
Zach Calderson
groverz1@msu.edu
Facilities Manager
Emily Scott
517-884-4414
escott@msu.edu
Neighborhood Administrative Coordinator
Rachel Riebow
517-884-0696
riebowra@msu.edu
