Owen Hall is a favorite to both underclassmen and graduate students. Almost all rooms in Owen Hall are single rooms. The hall is home to a Sparty’s mini-market and the allergen-free dining hall, Thrive. Students living in Owen Hall have the option to choose a dining plan, but this is not required.
Fun fact: Owen Hall is named after Floyd Owen, class of 1902, who provided part of the funding to build the hall. It was the first co-ed hall with male and female students living in their respective wings.
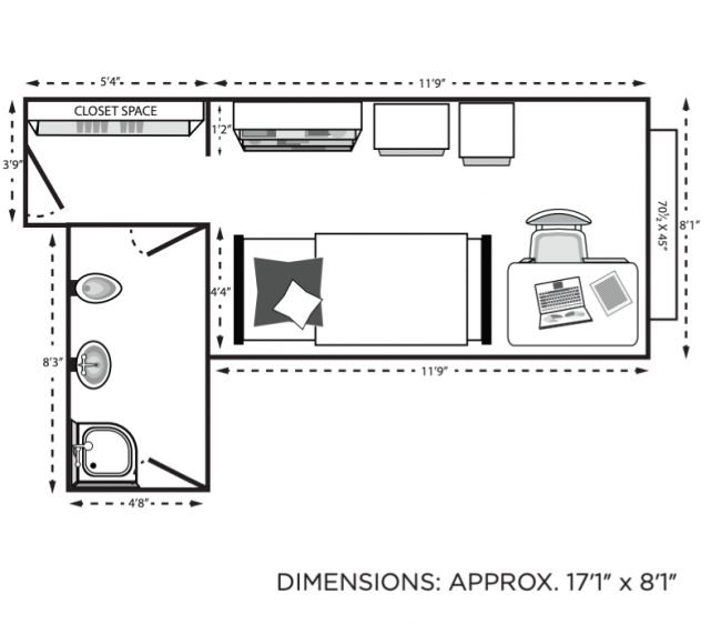
For a 360 tour of a room in River Trail Neighborhood visit: liveon.msu.edu/360Tours


Floor Plans
The majority of rooms in Owen Hall are permanent singles. The virtual tour room below is a permanent single.
Floor plan dimensions are approximate — room size and furniture dimensions can vary from room to room.
Building style: Midcentury modern
Neighborhood: River Trail
Year built: 1960
Number of Floors: 7
Owen Service Center: 517-355-5068
Engagement Center: McDonel
Address: 735 E. Shaw Lane
East Lansing, MI 48825
Building Features
- Suite-style bathrooms
- Single- and double-style rooms
- Weekly bathroom cleaning
- Barrier-free housing
- Fully furnished
- In-room Wi-Fi
- Co-ed floors
- Music practice room
- TV lounge
- Meeting space
Owen Hall Location
Want to see more?
Explore other halls in River Trail Neighborhood.
Owen Hall Service Center
517-355-5068
Community Director
Jessica Quandt
quandtje@msu.edu
Assistant Director of Residence Education
Alison Sinadinos
sinadin4@msu.edu
Facilities Manager
Miles Evenson
517-884-4414
evenson4@msu.edu
Neighborhood Administrative Coordinator
Cameron Morton
517-884-0745
morton34@msu.edu


